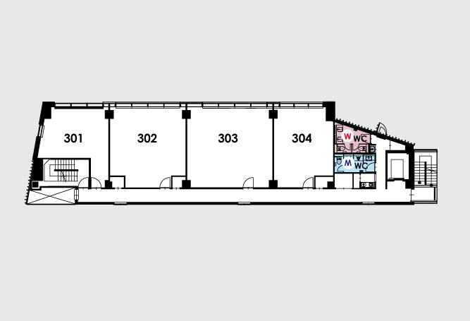
Office 304号室
面積:41.80㎡/12.64坪
賃料:¥386,100(税込)
諸経費:¥30,800(税込)
入居可能日:即日
Office 504号室
面積:30.40㎡/9.19坪
賃料:¥284,900(税込)
諸経費:¥23,100(税込)
入居可能日:3月下旬
<FREE DESK 募集>
フリーデスク|法人登記なしプラン
利用料:25,000円(税込27,500円)
入居可能日:即日
※ 法人登記無・社名表示不可・専用ポスト利用不可
法人登記ありプランは満席となっております。
3~6階は全20区画からなるクリエイティブオフィス。
6階には会議室や使い勝手の良いワークラウンジ、
開放感あるルーフトップテラスなど充実した共用部を備えます。
1階の商業施設“エトモ祐天寺”内には「スターバックスコーヒー」を始め、
ドラッグストアやスーパー等、利便性の高い店舗が多く入店。
2階には保育所も入居し、多様な働き方をサポートします。
生活が育つ
子供が育つ
地域が育つ
クリエイターが育つ
都心にありながら、緑豊かでどこかゆっくりと時間が流れる街、祐天寺。
商店街の中には、老舗の惣菜店やレトロな居酒屋から、お洒落なアパレルショップ・カフェ・サロン・レストランまで、
「古さ」と「新しさ」がうまく混在しながら、個性的なショップが集まります。
平日だけでなく、休日に訪れても新しい発見がある街。
天気が良い日は、広い青空にきれいな夕焼けが映えます。
地域に根差す書店「SUNNY BOY BOOKS」監修の“祐天寺おでかけマップ”
仕事中のちょっとした休憩時間、仕事後や休日の街歩きの参考に。
6F WORK LOUNGE
地域に根差す書店がセレクトした書籍が読めるワークラウンジは、ちょっとした打ち合わせや執務スペースとして利用できます。
その他、会議室や開放的なルーフトップなど、創造力を刺激するパブリックスペースをご利用いただけます。
使い勝手の良いシンプルな内装で、プライベート空間が保てる全20区画のスモールオフィスプランに加えて、
1名様で気軽にご利用頂ける、フリーデスクプランをご用意しております。
どちらのプランもワークラウンジ、会議室、ルーフトップ等、充実した共用部を利用することが可能。
事業規模やワークスタイルに合わせてお選びいただけます。

Office| 区画 | 面積 (㎡・坪) |
賃料 | 諸費用 | 入居可能日 |
|---|---|---|---|---|
| 304 | 41.81㎡ / 12.64坪 | 351,000円 (税込 386,100円) |
28,000円 (税込 30,800円) |
即日 |
| 504 | 30.40 / 9.19 | 259,000円 (税込284,900円) |
21,000円 (税込23,100円) |
3月下旬 |

FREE DESK| プラン | OFFICE | Free Desk |
| 種別 | 事務所 | ー |
| 契約種類 | 定期建物 賃貸借契約 |
施設利用契約 |
| 契約期間 | 2年間 | 1年間 |
| 再契約・更新 | 再契約相談可 | 自動更新 |
| 再契約手数料 | 新賃料の 1.1ヶ月 |
ー |
| 年会費 | ー | 20,000円(税込円) |
| 保証金 | 賃料の 2.1ヶ月分 |
20,000円(非課税) |
| 保証金償却 | 保証金の内、賃料の 1.1ヶ月 |
ー |
| 保証会社 | 要 | 不要 |
| 保証会社委託料 | 税込賃料の 1ヶ月分(非課税) |
ー |
| 連帯保証人 | 要 | 不要 |
| 火災保険 | 要加入 | ー |
| 契約事務手数料 | 賃料の 1.1ヶ月 |
20,000円(税込円) |
| 期間内解約 | 2ヶ月前予告 | 1ヶ月前予告 |
住 所
〒153-0052 東京都目黒区祐天寺2丁目13-4
交 通
東急東横線「祐天寺駅」徒歩1分
内覧予約受付中!
Pointline Yutenjiでは、現地内覧を承っております。
下記フォームまたはお電話よりお問合せ下さい。
日程の確定は、担当より改めてご連絡させていただきます。
※ ご希望の内覧日が2営業日以内の場合は、お電話でお問合せ頂けますとスムーズです。
※ ご希望の日時に添えない場合がございます。
※ 満室のプラン・区画は、ご内覧を承れません。空室待ちとなりますのでご了承ください。
ひとが育つ、まちが育つ